Building engineering | Year 1


Bouwtechnieken Bouw | Blok 1

 


Project inside-out | Blok 1


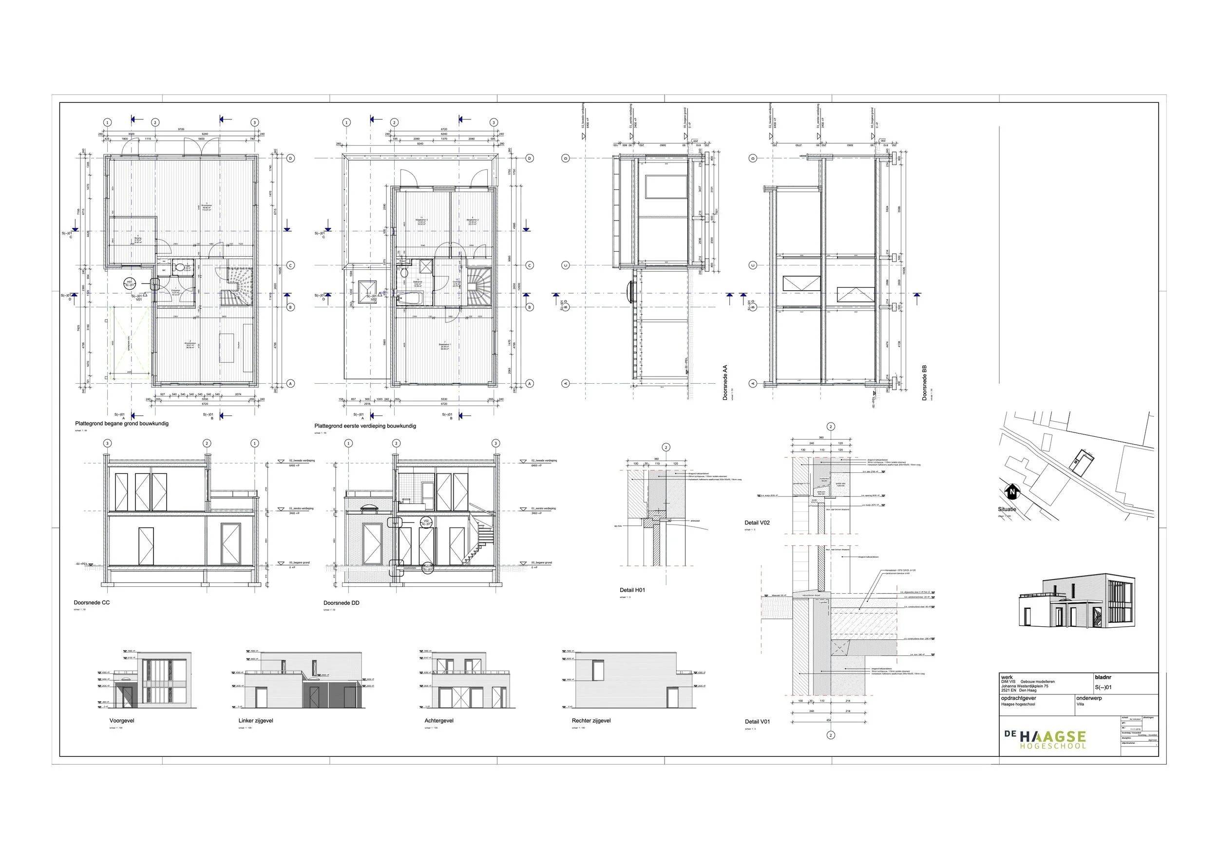
DIM | Blok 1


Management, Organisatie en Recht | Blok 1


Bouwtechnieken bouwdelen | Blok 2


DIM investigate | Blok 2


Project Plug & Play | Blok 4